Back To How-To Survival Library

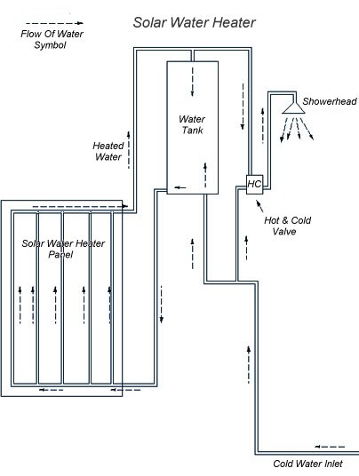
Solar Water Heater Principles


Solar Water Heater

The solar shower gives an alternative during the summer months, and it is also a good demonstration of a thermosiphon.


Heating Panel

Heating Panel


Menu| Y2K Updates | Discussion Forums